We as designers are constantly searching for better content to improve our BIM libraries. At long last someone has stepped up to the challenge to create some standard content and what NBS have provided within the NBS National BIM Library
certainly covers the basics for architectural documentation. Most notably, the toilet and accessible toilet content are thoroughly planned. The content provided so far, wholly for architectural use, excluding structural content, is the just the start of what NBS are hoping to provide. Beginning a design using only this content certainly has its limitations as the intended use does not target schematic design; but it should be noted that these families are intended for documentation use and for linking to NBS Create.

HOK were delighted to have the opportunity to test the content, provide feedback to NBS in terms of the Revit content, and create a demonstration design model to showcase its application. Our findings are that graphically the families require some development, however the link to NBS Create works as intended. Designed as generic families, the Revit content lacks visibility parameters; this means firms will need to adapt the families to their own coarse/medium/fine standards. HOK material was used where additional content was required over and above the NBS National BIM Library for this demonstration model.

Currently the NBS National BIM Library content is in Revit, IFC, ArchiCAD, Bentley, Vectorworks and Tekla formats. A PDF supporting document is also provided for most of the downloads. It is imperative to read this supporting document, especially doors, as it not only explains the family itself, it explains the naming convention and the how-tos if you need to modify a duplicate.
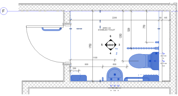
Example 1
The screen shots below are an example of the National BIM Library content used in designing an accessible toilet
. Highlighted in blue is the NBS National BIM Library Revit plumbing fixture accessible toilet family with shared nested plumbing fixtures; the accessories are available as individual families. The door
, walls
and floor finish
shown are all NBS National BIM Library content.


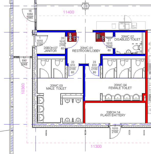
Example 2
The screenshot below shows an excerpt from the fire strategy plan. Colours to walls and doors were applied via filters to the 60' and 120' fire rating parameters. Signage
can also be seen.

Those new to Revit and using BIM software may need some additional assistance on implementing the content, as the parameters are quite intensive. We would therefore recommend putting the content in a blank project for testing before using in an active project. For example, if you want to schedule within Revit from the NBS content, it would be worth looking to NBS for a basic schedule or certainly using the shared parameter file that is included within the download zip file.
All in all HOK's test project experience with the NBS content was a good one. A first live trial will always have hiccups, but as other firms give their feedback on the content provided, this library should grow and become really useful during the documentation phase when using the NBS Create link.
My colleague David Light attended a recent NBS user day and blogged
about the release of the library.
